第七章 多米诺空间(第5/9页)
安缜的脸上却仍然挂着自信:“不,凶手的确就躲在门后,一个你看不见的门后。”
“什么意思?”钟可十分困惑,“我看不见的门后?可这里只有一扇房门啊……哪来其他……”顷刻间,钟可感觉一股洪流冲击着她的大脑,某个点在她的脑中不断放大。
“你也意识到了吧。”安缜微微一笑。
“不可能的……”
“这个房间可不只有一扇门哦。”安缜转过头,细长的手指像魔法棒那样在房间里划了半个圈,“这里一共有五扇门!”
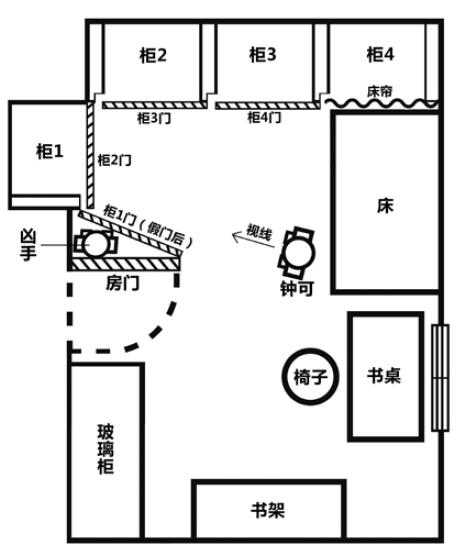
安缜所指的,正是那四个嵌进墙壁里的柜子。的确,这个房间里,加上四个嵌墙柜的门,总共有五扇门。
“我……”钟可的舌头开始打结。
“魔术的真相往往都很简单,只是很多时候,人们不愿往那个方向思考。因为谁都不想承认,自己能被这么简单的把戏欺骗。其实,你所看见的‘门后’,正是凶手想让你看见的,他利用房间里现成的东西,制造了一个‘假的门后’。”
“是……是利用嵌墙柜吗?”
“没错,为了方便说明,我们把这四个柜子做个编号。”安缜首先走到西侧墙上的那个柜子前,“这个离门最近的就叫‘柜子1’。”旋即他又站到北侧墙上的那三个柜子前,“这边并排的三个柜子,从左到右,依次是‘柜子2’、‘柜子3’、‘柜子4’。
“好了,现在让我们重现一遍凶手的诡计。奇迹就在眼前,不要眨眼睛。”安缜来到门口,先将房门向内打开到九十度左右。然后他又拉开“柜子1”的门,让柜门紧紧靠在房门后方,并使门缘对齐。再接着,安缜将之前拔下来的挂钩贴在柜门内侧,把挂历挂了上去,高度和位置都与先前保持一致。然后,安缜像魔术师一样转过身面对观众,道:“这,就是凶手想让你看到的‘假门后’。”
“这……”钟可实在无法想象,当晚面对的竟会是凶手如此大胆的表演。
“这扇深黄色的房门,无论是高度、宽度还是颜色,都和嵌墙柜的木门一致。真凶就是这样,将‘柜子1’的门打开,使它与开启的房门并拢。让作为目击者的你,错把‘柜门的内面’当成了‘房门的后门板’。而房门和柜门之间的狭小空间,就是凶手缩着身子躲藏的地方。当然,原本一直挂在门后的醒目挂历也相当有效地起到了障眼法的作用,它让你先入为主地以为,自己看到的就是后门板不会错。”安缜边解释,边在纸上画了一张解说图。

图三 多米诺空间诡计解说图
“可是,如果‘柜子1’的门用来冒充了房门,那么‘柜子1’要怎么办呢?我不就会看到‘柜子1’的门不见了吗?”钟可提出一个漏洞。
“不是还有边上的‘柜子2’吗?”安缜漫不经心地说,“把‘柜子2’的门向外打开九十度,用来代替‘柜子1’的门,将‘柜子1’遮挡住;然后,再把‘柜子3’的门向外打开一百八十度,用来替代‘柜子2’的门,以此类推,就像多米诺骨牌一样,产生连锁效应。”
“啊!”钟可恍然大悟,“就像纽扣系错位一样!这里四个柜子的门全都一模一样,门板内外的颜色也一致,又没有门把,所以里外看起来没什么区别……而且除了‘柜子2’之外都能打开到一百八十度。我看到的所有柜子门,其实都是旁边的柜子的!但是……最后‘柜子4’要怎么办呢?”钟可指了指靠墙角的柜子,思绪再度碰壁,“‘柜子4’的门给了‘柜子3’,那要用什么遮挡‘柜子4’?”
安缜走到陆哲南的床边,将还沾着血迹的床帘唰地拉了起来。
谜底瞬间被揭开。
“啊!我想起来了,是床帘!当时这个位置的确拉着床帘!”钟可尖叫道。
“是的,将床头部分的床帘拉起来,就能轻易遮住后方的‘柜子4’。但因为柜子4的门被床抵着,所以要打开‘柜子4’,就必须把床往南侧移一点,但南侧又有一张书桌……”
“所以凶手才会搬动书桌!”跟随安缜的思路,钟可觉得案情逐渐变得明朗起来。